» Latest Works

Altitude Ascent: Second Story Addition and 11 ft Ceilings on All Floors

Project Description

Project: Second Storey Addition, Side Extension

Area: Caledonia - Fairbank

Existing house: 2 Bed, 1 Wash, 1,873.53 sq. ft.

New House: 3 Bed, 5 Wash, 3,596.96 sq. ft.

Construction Duration:  8 months

Project Cost: Average

 

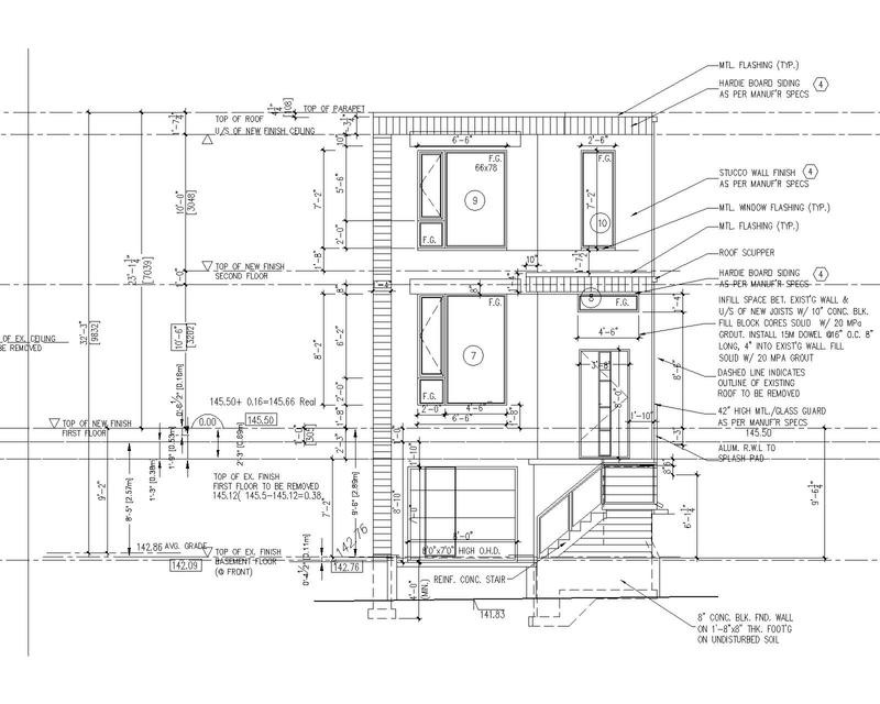
Side Extension and Second Floor Addition

Project Features

The construction took place on a very narrow lot, with only 2 feet gap between our house and the neighbours. This led to using the fire rated structure on the side walls, fire rated insulation, fire rated drywall, and dense board outside.

Because of the distance between two houses, we had to waterproof the basement from the inside. For the same reason, we installed the special slope on the flat roof (with the gutter system). 

Building on narrow property calls for a lot of challenges. We mastered our skills to make space for moving equipment, storing materials, as well as raising the scaffolds and finishing the sidewalls. Unfortunately, renovation projects in Toronto often take place on narrow lots. But not to worry! Our crew accomplished numerous renovations on narrow lots, shallow lots, hillside lots, lots with big obstructing trees at the front and so on, meeting all homeowners’ needs.   

Custom home features

This house features airy 11’ ceilings both on the first and second floor. We installed new gas and water service, a boiler heating system, with the heated floors and heated driveway. The windows are oversized, yet they are very energy-efficient, with the fiberglass frames and triple glazing, to make sure that the heat is sealed well inside the house. Exterior design features trendy flat roof, and combination of clean and simple stucco finishes, rustic cedar and edgy stone veneer. 

The backyard has four slopes, supported with the rigid Gabion walls. We find these mesh containers to be the most inexpensive, easy-to-install and nicely looking solution to restrain soil, and we used them on other projects.   

Home Addition Services Toronto

Do you find similarities between this project and what you have in mind for your addition? We are looking forward to discuss your ideas. Contact us by email, or via website form , and we will reply to your inquiry as soon as possible.  

 

 

» Get consultation

Need consultation to build your dream project?

» Our Referrals

We Are Trusted Home Builders:

@ 2011-2026 WellCore Corporation. All Rights reserved