Welcome to WellCore Corporation
(416) 882-4606
Login
Home
Gallery
Home Additions
Custom Homes
Architectural Drawings And Permits
Duplex and Triplex
Home Renovation Contractors
Services
Home Additions
Custom Homes
Architectural Drawings And Permits
Interior Design
Full Home Renovation
Duplex and Triplex
Home Renovation Contractors
Case Study
Blog
Contact
Home
Gallery
Services
Case Study
Blog
Contact
Get A Quote
»
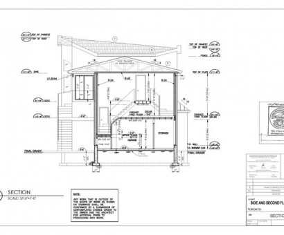
Riverfront Renewal: New Build, Old Foundation, Basement Preserved
Home
Projects
Riverfront Renewal: New Build, Old Foundation, Basement Preserved
»
Latest Works
Riverfront Renewal: New Build, Old Foundation, Basement Preserved
View More Images
»
Get consultation
Need consultation to build your dream project?
Have any questions?
Call 416.882.4606
Get consultation
»
»
Our Referrals
We Are Trusted Home Builders:
»
@ 2011-2026
WellCore Corporation
. All Rights reserved
CUSTOM WEB DEVELOPMENT BY SUPERIOR WEB SOLUTIONS